close
Fai una ricerca e premi invio

Puoi perfezionare la ricerca usando questi criteri:

Cercare una corrispondenza esatta
Metti una parola o una frase tra virgolette. Ad esempio: "progetti di ricerca".
Forzare la presenza di tutti i termini cercati
Metti il simbolo + tra ciascun termine della ricerca. Ad esempio: bando + innovazione.
Escludere parole dalla ricerca
Usa il simbolo - davanti a una parola da escludere. Ad esempio: bandi -pnrr.
Operatore jolly: *
Verranno identificate tutte le parole che iniziano con la parola indicata prima dell'operatore asterisco. Ad esempio: band* PNRR
Assolombarda
EN
Lavora con noi
  • Accedi
Assolombarda
  • Chi siamo
  • Le imprese
  • Servizi
  • Media
  • Contatti
  • Ribbon Ukraine
  • Come Associarsi
×

Chi siamo

in evidenza
  • Convenzioni
  • Startup Desk
  • Tutti i servizi
  • L'Associazione siamo Noi
  • Aziende familiari
Scopri Assolombarda
  • La Storia
  • Imprese associate
  • Statuto e regolamenti
  • Bilancio
  • Assemblee
  • Dove siamo
  • Il palazzo Assolombarda
Governance
  • Organi
  • Sede di Lodi
  • Sede di Monza e Brianza
  • Sede di Pavia
  • Gruppi e Sezioni
  • Zone
  • Piccola Industria
  • Gruppo Giovani Imprenditori
  • Gruppi Tecnici
Cerca imprese
Che impresa sei?
  • Start up
  • Piccola impresa
  • Media impresa
  • Grande impresa
Le filiere
  • Agroalimentare
  • Attrattività
  • Automotive
  • Largo consumo
  • Life sciences
  • Energy Sustainable Global Chain
  • Spazio costruito

Servizi

Dedicato a te
  • Scopri l'Associazione
  • Scopri i tool su misura per te
  • Scopri le opportunità di Bancopass
  • Scopri Assolombarda Servizi
Per le imprese
  • Servizi
  • Desk
  • Newsletter
  • Tutte le convenzioni
  • Appuntamenti
  • Scadenze
Multimedia
  • Video
  • Video incontri informativi
Social

Centro studi

Cosa fa il centro studi

Produce e diffonde informazioni e dati volti a supportare la competitività delle imprese.

Analisi Periodiche
  • I numeri per le Risorse Umane - 2024...
  • La domanda di lavoro e di competenze a Monza nel...
  • Booklet Economia: in Lombardia nel 2023 record...
  • Parità di genere in Italia
  • Booklet Economia: a fine 2023 Pil di Milano...
  • Cruscotto materie prime (gennaio-febbraio 2024)...
Ricerche e Approfondimenti
Scelti per voi
  • La Commissione Europea prevede una crescita di...
  • Previsioni 2024 a confronto: crescita di PIL...
  • Global Risk Report 2024 (World Economic Forum)...

Media

Ultimi aggiornamenti
  • Eletti 25 componenti del Consiglio Generale e i Presidenti delle Zone di Assolombarda
  • Assolombarda, ecco le professioni del futuro: intelligenza artificiale e competenze “green” guidano il cambiamento
  • Presentato il Bilancio di Sostenibilità 2023: più di 130 progetti a favore della comunità e del territorio
Area Stampa
  • Comunicati Stampa
  • Dichiarazioni
  • Interviste
  • Presidente
Notizie dall'associazione
  • Video
  • Genio & Impresa

Salta ai contenuti. | Salta alla navigazione

Info
  • Chi siamo
  • Le imprese
  • Servizi
  • Media
  • Contatti
  • Come Associarsi
  • Lavora con noi
  • English
  • X

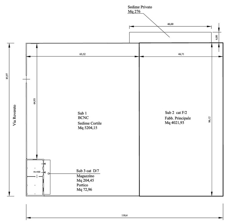
Gallery comparto produttivo Calzaturificio Gravati Mario Spa

  • Home
  • Desk
  • Desk immobili d'impresa
  • Immobili in vetrina
  • Gallery
  • Gallery comparto produttivo Calzaturificio Gravati Mario Spa
1.JPG
2.JPG
3.JPG
4.JPG
planimetria.jpg

Chi Siamo

La storia Imprese associate Statuto e regolamenti Bilancio Assemblee Dove siamo Il palazzo Assolombarda Organi Sede di Lodi Sede di Monza e Brianza Sede di Pavia Gruppi e Sezioni Zone Piccola Industria Gruppo Giovani Imprenditori Gruppi Tecnici

Seguici sui social:

  • X

Le imprese

Start up Piccole imprese Medie imprese Grandi imprese Filiera Agroalimentare Filiera Attrattività Filiera Automotive Filiera Largo consumo Filiera Life sciences Filiera Energy Sustainable Global Chain Filiera Spazio costruito

Come Associarsi

5 buoni motivi

Servizi

Desk Tutte le convenzioni Appuntamenti Scadenze Video Video incontri informativi Tutti i contatti Assolombarda Servizi

Centro Studi

Media

Comunicati stampa Dichiarazioni Interviste Presidente Genio & Impresa

Lavora con noi

Documenti legali

Privacy policy Informativa privacy Cookie policy Disclaimer Copyright Policy Antitrust Policy di Approvvigionamento Sostenibile Modello ex D.Lgs.231/2001 Whistleblowing Trasparenza Erogazioni Pubbliche - Legge n.124/2017

© 2000 - 2026 Assolombarda - Codice Fiscale: 80040750152

360